For Sale -- Page 725

For Sale
$1,280,000
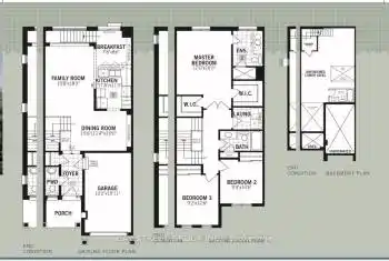
322 Centre Street, Espanola, Ontario P5E 1G3
72,667 Listings