Properties -- Page 25

For Sale
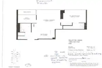
$349,888
3421 Sheppard Avenue Unit# 201, Toronto E05, Ontario M1T 3K5
  • 1Beds
  • 1Baths
83,911 Listings